Zdravstvena postaja Cerkno
Gradbeni projekti
Gradbeni projekti
Faza: v teku
Priprava projekta: 2022-2024
Predvidena gradnja: 2026-2027
Vrednost investicije (projektantska ocena): 3.600.000 €
Financiranje: MZ, Občina Cerkno
Projektant: Arhitektura MJ d.o.o.
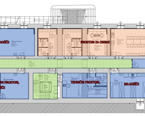
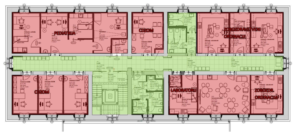
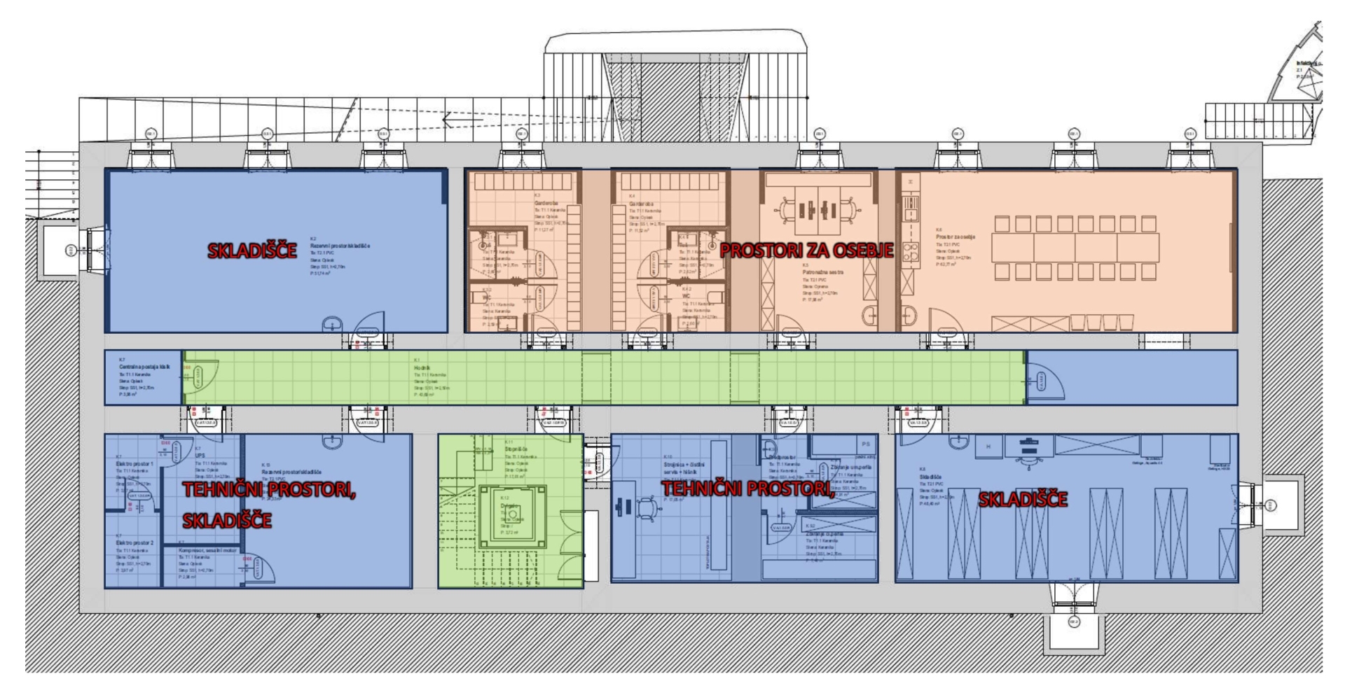
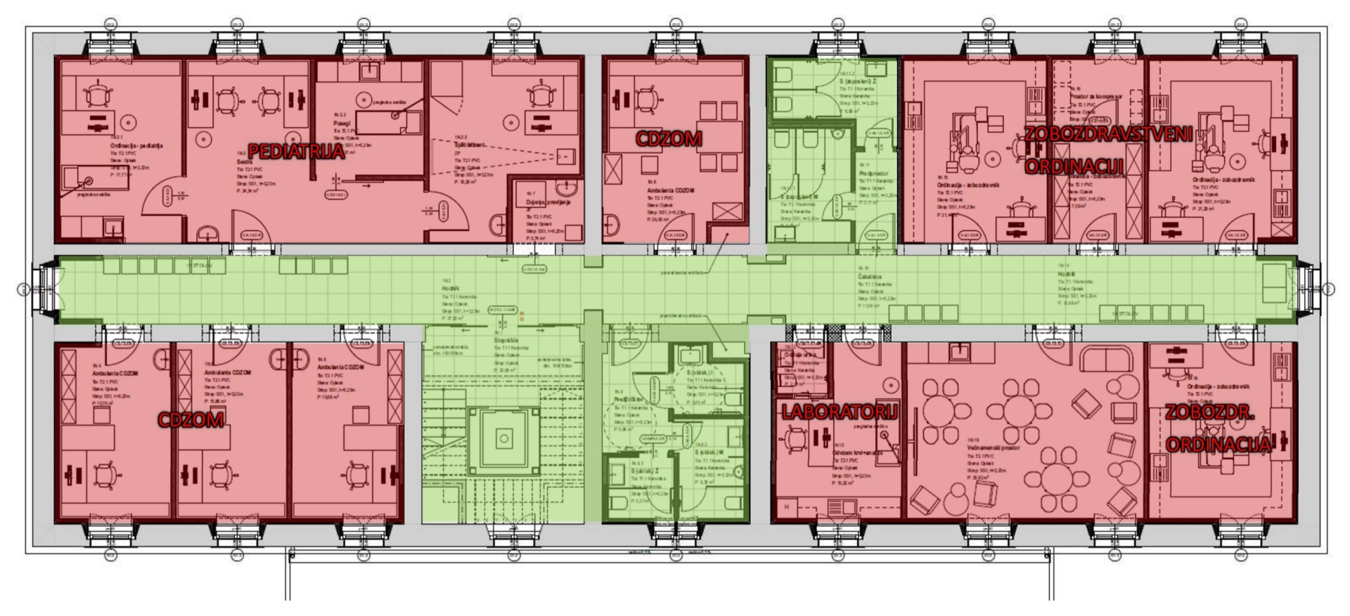
Opis projekta:
Predvidena je selitev ZP in lekarne iz obstoječe lokacije v upravno stavbo stare Ete.
Trenutno stanje projekta in izvedene faze:
Idejna zasnova notranjosti objekta z ostalimi deležniki (ZD, Lekarna) je bila usklajena. Pripravljen je bil projekt za gradbeno dovoljenje, izdelan mobilnostni načrt. Julija 2025 je bilo pridobljeno gradbeno dovoljenje. 9. 2. 2026 je bil končan projekt za izvedbo.
Nadaljnje faze (v primeru sprejetja proračuna za leto 2026):
Občina Cerkno
Bevkova ulica 9
5282 Cerkno
05 373 46 40
obcina@cerkno.si
https://www.cerkno.si
Ponedeljek:
8.00 – 12.00 in 13.00 – 14.00
Sreda:
8.00 – 12.00 in 13.00 – 16.00
Petek:
8.00 – 12.00
To spletno mesto uporablja piškotke za boljšo uporabniško izkušnjo. Če boste spletno mesto uporabljali še naprej, s tem privolite v njihovo nadaljnjo uporabo.
PodrobnostiStrinjam seSpletna stran uporablja piškotke, ki se lahko namestijo v vašo napravo. Piškotki nam omogočajo beleženje statistike obiska naše spletne strani, obogatijo lahko vašo uporabniško izkušnjo in prilagodijo vašo relacijo do našega spletnega mesta.
Če želite izvedeti več, vas prosimo, da se sprehodite skozi kategorije spodaj. Posamezne nastavitve lahko prilagodite vašim željam. Opozarjamo vas, da blokiranje nekaterih vrst piškotkov lahko vpliva na uporabniško izkušnjo na naših spletnih straneh in na storitve, ki jih ponujamo.
Nekateri piškotki so nujno potrebni za zagotavljanje delovanja storitev, ki so na voljo na spletni strani in za uporabo nekaterih posebnih funkcij.
Ker so tovrstni piškotki nujno potrebni za osnovno delovanje spletne strani, jih ne smete zavrniti, saj bi s tem vplivali na samo delovanje strani. Lahko jih sicer blokirate ali izbrišete tako, da spremenite nastavitve brskalnika in blokirate vse piškotke na določeni strani.
Ti piškotki zbirajo podatke, ki se uporabljajo z namenom, da bi nam pomagali razumeti, kako se uporablja naša spletna stran ali kako učinkovite so naše tržne akcije. Pomagajo nam pri prilagajanju naše spletne strani in aplikacij, da bi s tem izboljšali uporabniške izkušnje obiskovalcev naše spletne strani.
Če ne želite, da sledimo vašemu obiskovanju naših spletnih strani in podstrani, lahko sledenje onemogočite tukaj:
Uporabljamo tudi nekatere zunanje storitve, kot so Google Webfonts, Google Maps ter servisi Vimeo in Youtube. Ker omenjeni ponudniki lahko zbirajo osebne podatke, kot je vaš naslov IP, vam ponujamo možnost, da jih na tem mestu blokirate. Opozarjamo vas, da bi to lahko močno zmanjšalo funkcionalnost in videz naše spletne strani. Vse spremembe bodo stopile v veljavo, ko boste ponovno naložili spletno stran.
Nastavitve Google Webfonts:
Nastavitve Google Maps:
Servisi Vimeo in Youtube:
Podrobnosti o naših piškotkih in nastavitvah zasebnosti lahko preberete na naši spletni strani o politiki zasebnosti.
