Športni park
Gradbeni projekti
Gradbeni projekti
Faza: v teku
Priprava projekta: 2025
Predvidena gradnja: 2025-2026
Vrednost investicije (projektantska ocena): 770.265,48 + DDV
Financiranje: MGTŠ, Občina Cerkno, Fundacija za šport, EKSRP, ESRR
Projektant: Arhema d.o.o.
Opis projekta:
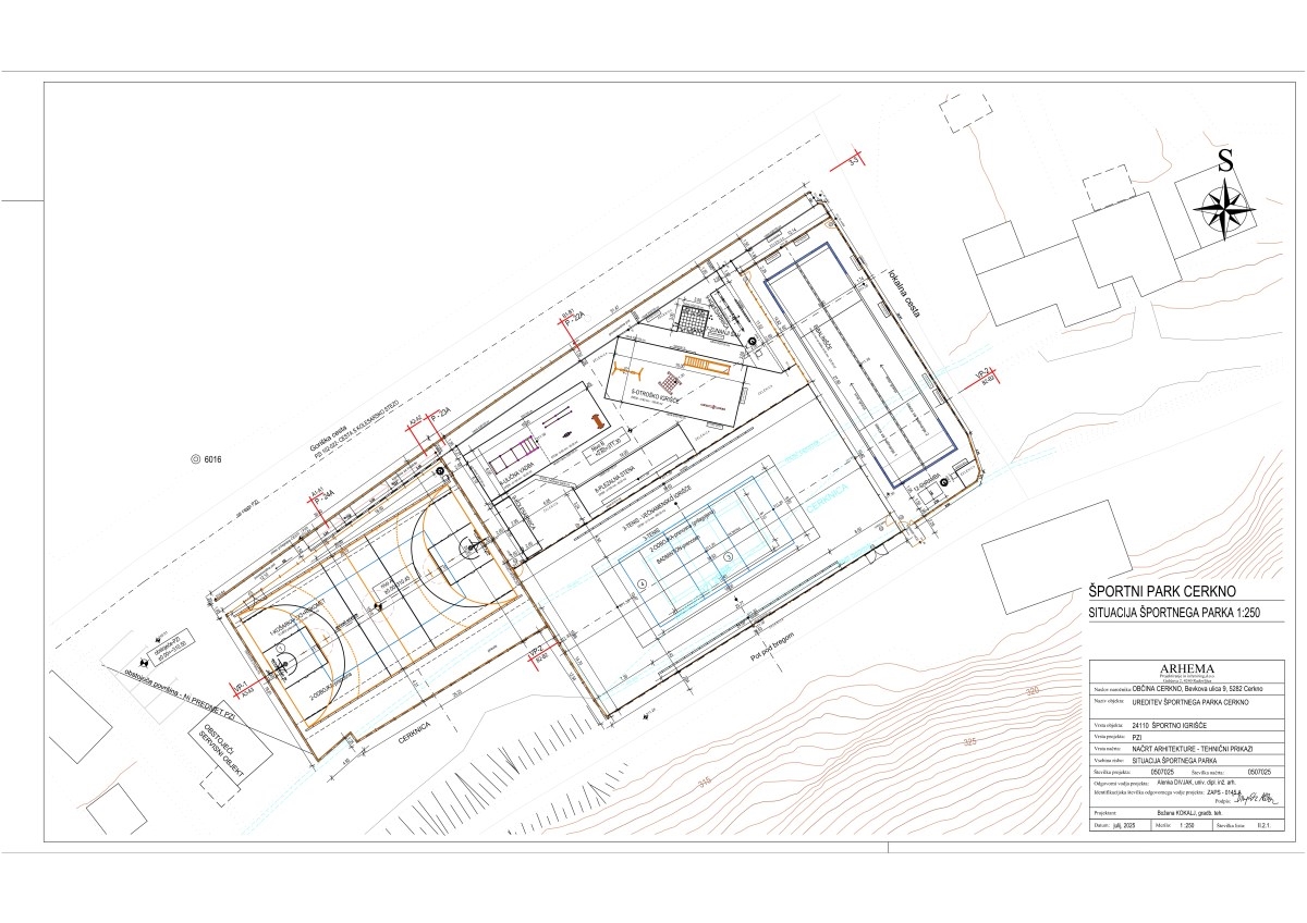
Predvidena je ureditev športnega parka na obstoječih športnih površinah.
Trenutno stanje projekta in izvedene faze:
Izvedena je bila menjava zemljišč in vpisano lastništvo v ZK (9. 4. 2024), celotna športna igrišča so po menjavi pripadla Občini Cerkno. Izdelana je bila idejna zasnova in popis del z oceno investicije. Del projekta (košarkarsko igrišče) je bil prijavljen na razpis MGTŠ za sofinanciranje investicij v športno infrastrukturo (31. 5. 2024), vendar občina na tem razpisu sredstev še ni uspela pridobiti. Pridobljeno je bilo uporabno dovoljenje, ker ob izgradnji ni bilo pridobljeno ter stavbna pravica nad vodotokom. Izdelan je bil Izvedbeni načrt ter izvedeno javno naročilo ter v izbran izvajalec Tigrad d.o.o., s katerim je bila konec septembra 2025 podpisana prva pogodba. Investicija je bila prijavljena na razpis MGTŠ za leto 2025, na katerem je občina pridobila 250.000 sredstev, ki so že bila realizirana. Investicija je trenutno v izvajanju. Vloge za sofinanciranje pa so bile oddane še na štiri druge vire (MGTŠ 2026, EKSRP, ESRR, FZŠ). Podpisane so bile vse pogodbe z izvajalcem, ker se gradnja izvaja v več fazah.
Nadaljnje faze:
Zaključek gradbenih del je predviden konec junija 2026.
Situacija Športnega parka Cerkno – II.2.1-A2 (.pdf datoteka)
Občina Cerkno
Bevkova ulica 9
5282 Cerkno
05 373 46 40
obcina@cerkno.si
https://www.cerkno.si
Ponedeljek:
8.00 – 12.00 in 13.00 – 14.00
Sreda:
8.00 – 12.00 in 13.00 – 16.00
Petek:
8.00 – 12.00
To spletno mesto uporablja piškotke za boljšo uporabniško izkušnjo. Če boste spletno mesto uporabljali še naprej, s tem privolite v njihovo nadaljnjo uporabo.
PodrobnostiStrinjam seSpletna stran uporablja piškotke, ki se lahko namestijo v vašo napravo. Piškotki nam omogočajo beleženje statistike obiska naše spletne strani, obogatijo lahko vašo uporabniško izkušnjo in prilagodijo vašo relacijo do našega spletnega mesta.
Če želite izvedeti več, vas prosimo, da se sprehodite skozi kategorije spodaj. Posamezne nastavitve lahko prilagodite vašim željam. Opozarjamo vas, da blokiranje nekaterih vrst piškotkov lahko vpliva na uporabniško izkušnjo na naših spletnih straneh in na storitve, ki jih ponujamo.
Nekateri piškotki so nujno potrebni za zagotavljanje delovanja storitev, ki so na voljo na spletni strani in za uporabo nekaterih posebnih funkcij.
Ker so tovrstni piškotki nujno potrebni za osnovno delovanje spletne strani, jih ne smete zavrniti, saj bi s tem vplivali na samo delovanje strani. Lahko jih sicer blokirate ali izbrišete tako, da spremenite nastavitve brskalnika in blokirate vse piškotke na določeni strani.
Ti piškotki zbirajo podatke, ki se uporabljajo z namenom, da bi nam pomagali razumeti, kako se uporablja naša spletna stran ali kako učinkovite so naše tržne akcije. Pomagajo nam pri prilagajanju naše spletne strani in aplikacij, da bi s tem izboljšali uporabniške izkušnje obiskovalcev naše spletne strani.
Če ne želite, da sledimo vašemu obiskovanju naših spletnih strani in podstrani, lahko sledenje onemogočite tukaj:
Uporabljamo tudi nekatere zunanje storitve, kot so Google Webfonts, Google Maps ter servisi Vimeo in Youtube. Ker omenjeni ponudniki lahko zbirajo osebne podatke, kot je vaš naslov IP, vam ponujamo možnost, da jih na tem mestu blokirate. Opozarjamo vas, da bi to lahko močno zmanjšalo funkcionalnost in videz naše spletne strani. Vse spremembe bodo stopile v veljavo, ko boste ponovno naložili spletno stran.
Nastavitve Google Webfonts:
Nastavitve Google Maps:
Servisi Vimeo in Youtube:
Podrobnosti o naših piškotkih in nastavitvah zasebnosti lahko preberete na naši spletni strani o politiki zasebnosti.
